Les locaux maçonniques nantais / Les temples maçonniques de Nantes sont bien plus que de simples lieux de réunion. Ce sont des espaces chargés d’histoire, d’art et de symbolisme, qui témoignent de la richesse d’une tradition séculaire. Bien que discrets, ces édifices sont des joyaux architecturaux qui abritent les rituels et les enseignements de la franc-maçonnerie nantaise. Poussez la porte de ces lieux emblématiques et découvrez un pan méconnu de l’histoire et du patrimoine de la cité des ducs.

Les Locaux Maçonniques Nantais

Du Cercle Fraternel d’Études Sociales (CFES) en 1912 à l’Association Fraternelle d’Études Sociales (AFESO) en 2025

1912 : Le « 33 » rue des Arts à Nantes

Pendant près d’un siècle, l’Histoire de la Franc-maçonnerie nantaise fut intimement liée à celle de l’Association Fraternelle d’Études Sociales « l’A.F.E.S.», aujourd’hui plus facilement désignée par « l’A.F.E.So. » – O pour Ouest. C’est à partir des années 2000, avec en particulier la construction de l‘Espace Marie Rolland, que les Loges se dispersèrent dans l’agglomération Nantaise.

Au début de l’année 1912, il existe à Nantes trois Loges maçonniques, deux sont masculines, Paix Union, Mars et Les Arts Réunis, couramment nommée P.U.M.A.R, du Grand Orient de France, La Libre Conscience, de la Grande Loge de France, et une est mixte, Le Droit Humain N°32.

Paix Union Mars et les Arts Réunis est la réunion en 1901 de deux anciennes Loges créées avant la Révolution. La Libre Conscience est relativement jeune, installée en avril 1870.

Ces  Loges ont des liens très forts, aussi bien avant qu’après la fusion de 1901. Elles sont unies pour défendre la République et la Laïcité et, plus encore, pour promouvoir l’école Laïque. Elles travaillent ensemble et adoptent des déclarations communes – annexe1 page 11.

En 1895, dans sa Tenue du 25 janvier, la Loge « Mars et les Arts » en recevant des visiteurs de « Paix et Union » et de « La Libre Conscience » évoque la possibilité d’un local commun afin de diminuer les coûts. Ce local commun est trouvé, comme attesté par un contrat d’assurance de la Prévoyance en 1907 qui couvre les trois Loges nantaises (sic) 1 demeurant à Nantes, 23 place de la Bourse.

C’est en 1912 que le projet prend sa forme définitive. Le 27 janvier, il est créé une association dénommée « Cercle Fraternel d’Études Sociales » régie par la nouvelle Loi sur les associations de 1901. C-R de l’Assemblée Générale constitutive – annexe 2 page 12.

Ses membres sont les Frères des Loges, dont certains possèdent la double appartenance G.O.D.F./D.H. ou G.L.D.F./D.H. la cotisation est fixée à 20 francs. Les locaux maçonniques nantais ont pour Président le Frère Pierre Allaire, pour Vice-président le Frère Rio, pour Trésorier le Frère Aristide Chauveau et pour Trésorier-adjoint le Frère Henri Petit.

la rue des Arts à Nantes

Son siège social est chez Maître Cholet au 9 rue Lafayette.

Le 6 mai, Le Cercle Fraternel d’Études Sociales représenté par son Président, le Frère Allaire, acquiert une maison, qualifiée d’hôtel, 33 rue des Arts à Nantes, auprès de Monsieur et Madame Lotz pour la somme de 45 000 francs.

30 000 francs sont réglés par l’association, le reste est avancé par le Frère Foucaud de P.U.M.A.R. Il sera remboursé par les Loges, le dernier versement étant daté de 1929.

Des travaux sont entrepris : une salle des fêtes et deux pièces au rez-de-chaussée, le Temple au premier étage, un appartement de trois pièces au second pour le concierge. Un Temple destiné au troisième degré est envisagé au sous-sol.

Il existe également un local donnant sur la rue de l’Industrie.

Le 28 mai, le Conseil d’Administration décide de transférer son siège social au 33 de la rue des Arts.

Monsieur Audrain, qualifié selon les cas de concierge des locaux maçonniques nantais ou d’appariteur est installé. Il est logé au 2ème étage et reçoit un salaire annuel de 850 Francs. (Conversion 2024 = 3 044 Euros).

Dès cette année le Cercle Fraternel d’Études Sociales reçoit deux demandes d’hébergement, d’abord de la Loge Mixte du Droit Humain n°32 qui prendra le titre distinctif « Guépin » en 1925 et également du « Comité Socialiste Nantais ».

En 1913, « La  Libre Pensée » et les locaux maçonniques nantais :

En 1913, « La  Libre Pensée » demande également à se réunir dans les locaux du 33 rue des Arts. La grande salle du rez-de-chaussée et le local de la rue de l’Industrie font l’objet de locations épisodiques ou régulières.

En 1914, dans sa réunion du 5 août, le Conseil d’Administration étudie la possibilité d’installer une « ambulance » c’est à dire une infirmerie dans la grande salle du rez-de-chaussée. Le coût dépassant les possibilités du cercle, c’est une salle de convalescence qui sera installée.

Pendant toute la guerre le Conseil d’Administration continue à se réunir et il est probable que c’est également le cas des Loges maçonniques.

1917 – création de l’AFES

En 1917, le 29 janvier le Conseil d’Administration propose de modifier le nom de l’association en « Association Fraternelle d’Études Sociales » -A.F.E.S-.

Cette modification sera ratifiée par l’Assemblée Générale des locaux maçonniques nantais le 25 mars. Monsieur Baudry est élu Président.

1918/1940 : Le « 33 » en souvenir de Jean Jaurès

En 1918, La municipalité de Nantes décide de donner le nom de Jean Jaurès à la rue des Arts.

À partir de la fin de la guerre et jusqu’en 1940, la Franc-maçonnerie nantaise comme la Franc-maçonnerie française va s’impliquer dans la défense de la République et de la Laïcité ainsi que dans la promotion de l’école Laïque. Elle trouve en face d’elle la droite conservatrice et l’Église Catholique ou au moins, sa hiérarchie. Cette attitude se retrouve dans les comptes rendus des Tenues mais aussi dans la vie de l’A.F.E.S.

Dès 1918, le Comité de Défense Républicaine et le Comité Socialiste nantais demandent à utiliser les locaux maçonniques nantais pour leurs réunions. C’est accepté moyennant un loyer annuel de 60 francs.

Ce ne sont que les premières demandes et toutes celles qui suivront viendront d’associations ou de partis proches des idées défendues par la Franc-maçonnerie.

Le budget de 1932 dans sa colonne recette en donne un bon exemple2 :

Organisation Montant (Francs)
Loges
Paix et Union 3 100
Libre Conscience 3 100
D.H. Guépin 1 200
Chapitres
Paix et Union 300
Libre Conscience 300
Autres entités
Droit Humain Loge « Guépin » 100
Ligue des Droits de l’Homme 400
Libre Pensée 300
Parti Communiste 1 000
S.F.I.O. 500
Comité Radical 100
Comité de Défense Laïque 100
Jeunesse Républicaine 100
Illisible 100
Jeunesse Socialiste 100
Compagnons maréchaux 150

Il se trouve dans les comptes des années 30 d’autres locataires, toujours dans la même mouvance : les combattants pour la paix, l’union rationaliste, les femmes socialistes, un groupe Francisco Ferrer 3 en 1937 ; en 1938 un groupe Patroma 4, la CGT SR 5, le groupe Camille Pelletan 6. Les Jeunesses Libertaires et la Solidarité Internationale Antifasciste font également des demandes qui ne seront pas suivies d’effet.

Plaque local maçonnique nantes

La présence du Parti Communiste peut paraître surprenante. Lors de sa création au Congrès de Tours en 1920, l’adhésion était soumise à des conditions édictées par Moscou. À ces conditions se serait ajoutée oralement l’interdiction d’appartenir à la Franc-maçonnerie. Réelle ou supposée cette interdiction fut rigoureusement respectée et il est intéressant de voir que sur le plan local, au moins à Nantes, elle n’empêcha pas des relations courtoises.

D’ailleurs, en septembre 1939 la question du maintien du Parti Communiste dans les locaux est posée à la suite du pacte germano-soviétique signé le 23 août. Le Conseil d’Administration estime que la section nantaise du P.C.F. n’est pas responsable de ce que fait la Russie.

Cependant, le 26 septembre, le Parti Communiste est dissous et en octobre, le Conseil d’Administration constate qu’il n’est plus possible de lui concéder l’usage du local.

1940/1950 : La victoire douloureuse mais éphémère de l’anti-maçonnisme

Le 13 août 1940, alors que des millions de Français sont sur les routes de l’exode et cherchent un accueil, le gouvernement de Philippe Pétain estime urgent de rédiger et de promulguer la loi sur les Sociétés Secrètes qui interdit la Franc-maçonnerie 7. C’est l’ultime épisode de la lutte engagée un peu sous la restauration mais surtout depuis le Second Empire, entre la Franc-maçonnerie et l’Église Catholique.

Local maçonnique nantes

En septembre, le Conseil d’Administration. propose la location d’une partie des locaux à l’intendance française, ce qui pourrait éviter une réquisition et permettrait d’assurer le nécessaire à Madame Audrain.

Malgré cela, le 10 septembre le Procureur de la République demande l’application du décret du 13 août et la dissolution des Loges relevant du Grand Orient de France, de la Grande Loge de France et du Droit Humain ainsi que la mise sous séquestre des biens mobiliers et immobiliers de ces Loges.

Le 22 avril 1941, puis les 13 et 16 janvier 1942, les autorités établissent la liste des meubles et objets saisis dans l’immeuble. Cette saisie se fait en présence du F\ Victor Bichon, alors Président de l’Association Fraternelle d’Études Sociales -A.F.E.S.-.

Une note de 1943 fait remarquer que certains documents appartenant aux Loges maçonniques ne figurent pas sur les listes. La présence du F\ Victor Bichon, Président de l’A.F.E.S., Passé Vénérable et Vénérable d’Honneur de « La Libre Conscience » explique probablement qu’une partie des archives de l’A.F.E.S se trouvent actuellement avec celles de La Libre Conscience.

Le bâtiment des locaux maçonniques nantais est d’abord loué au Service du Ravitaillement Général, au Rassemblement National (déjà) et au Service des Mines avant d’être attribué au Secrétariat d’état de la Production Industrielle le 4 octobre 1943.

Si l’occupation par le Service des Mines se fait sans problèmes, la restitution à l’A.F.E.S sera beaucoup plus difficile.

A la demande de restitution faite le 28 août 1944, le Préfet répond le 5 septembre que le Service des Mines ne dispose d’aucun autre local.

Le 12 juillet 1945, le Tribunal prononce (enfin) la levée du séquestre mais le 8 septembre 1945 le directeur des Domaines n’en a toujours pas connaissance.

Le 23 mai 1946, le Ministre de la Production Industrielle, Marcel Paul (déporté -P.C.F.-), assure au Député de Nantes qu’il intervient afin que le 33 rue Jean Jaurès soit restitué aux Loges maçonniques. Le 26 août, le même Ministre explique cependant au Député que le service des mines occupe toujours le 33 rue Jean Jaurès mais qu’il s’occupe de les reloger au plus tôt (sic).

Dans la séance du Conseil d’Administration des locaux maçonniques nantais et de l’A.F.E.S. du 5 octobre 1946, le Président, Victor Bichon explique que « le local serait évacué la semaine prochaine ».

franc-macon nantes

Le 19 octobre les clés n’ont toujours pas été remises à l’association et le C.A. décide que « si le local n’est pas ouvert, il sera passé outre. »

En décembre 1946 et en janvier 1947 des recherches dans les locaux de la Bibliothèque Nationale et au siège du Grand Orient de France permettent de retrouver les plateaux « égyptiens ». Mobilier aujourd’hui à nouveau restauré et installé dans le Temple « Égalité ».

Le 9 juillet 1947, un courrier du Directeur de l’Enregistrement des Domaines et du Timbre fait la liste des mobiliers à rendre ou à compenser. Il évoque des documents partis en Allemagne(-).

(-) Documents détournés à Berlin en 1945 par les Russes et restitués, en partie, au G.O.D.F. en 1992.

Le 18 janvier 1948, remis en état, les locaux sont inaugurés par les Grands Maîtres de la G\L\D\F\ Michel Dumesnil de Grammont et du G\O\D\F\ Francis Viaud.

La restitution du mobilier et les compensations dues aux meubles vendus et à l’utilisation des locaux ne seront pas plus simples, d’autant que les premières propositions ne répondent pas à la situation et seront refusées par Victor Bichon.

Les règlements pour rembourser les mobiliers, le transport des meubles retrouvés à Paris et payer les loyers de 1940 à 1946 se poursuivent jusqu’au début des années 50.

Les comptes rendus des Conseils d’Administration de ces années-là font état de nombreuses démarches et discussions avec les autorités.

Le 19 juillet 1957, la République Fédérale d’Allemagne promulgue une loi qui « prévoit une indemnisation pour la perte de biens mobiliers ayant été confisqués par les autorités nazies ».

Le 23 décembre 1962, la Loge « La Libre Conscience » reçoit de la G\L\D\F\ la somme de  2 254 francs pour solde des frais de spoliation. (Conversion 2024 = 3 873 euros).

1950/1976 le Renouveau 

Entre-temps les Loges ont repris leurs travaux : « La Libre Conscience » le 2ème mercredi et le 4ème dimanche, l’Aréopage le 2ème dimanche des mois pairs, le Chapitre le 2ème dimanche des mois impairs ; « Paix Union Mars et les Arts Réunis » le 1er samedi et le 3ème dimanche, les hauts grades du G.O.D.F le 1er dimanche des mois pairs. La Loge « Guépin » du Droit Humain reprend également ses travaux.

La Libre Pensée, la Ligue des Droits de l’Homme, le Comité Nantais de Défense Laïque, le groupe Francisco Ferrer se réunissent à nouveau au 33 de la rue Jean Jaurès.

Les Éclaireurs de France demandent à pouvoir utiliser les locaux et les Compagnons Maréchaux à pouvoir pratiquer des initiations compagnonniques dans le Temple maçonnique. Des demandes analogues de la part des Compagnons seront faites dans les années 60.

Les syndicats et partis politiques présents à la fin des années 30 semblent avoir trouvé d’autres locaux que les locaux maçonniques nantais.

En 1966 le budget, dans sa partie recettes, fait mention d’un loyer de 95 francs de la part de Memphis. À titre de comparaison la participation de « La Libre Conscience » s’élève à        1 200 francs, celle de « Paix Union Mars et les Arts Réunis  » à 1 100 francs et celle de « Guépin » à 250 francs.

Le nom de la Loge désigné par Memphis, c’est à dire par son rite ou son obédience, n’est pas mentionné 8 mais il s’agit très probablement de la Loge « Sophia », aujourd’hui intégrée au G\O\D\F\. Elle avait été créée en 1952 et les archives de « La Libre Conscience » possèdent une carte d’invitation à son soixantième anniversaire en 2012. Un triangle préparant sa création avait été ouvert  en 1947.

Entre 1950 et 1974, outre les questions de réparations et des dommages de guerre, l’essentiel des comptes-rendus du Conseil d’Administration de l’A.F.E.S. porte sur les travaux. D’abord des travaux d’aménagement, d’électricité, de peinture, de toiture …

Le chauffage donne lieu à de nombreuses discussions, l’installation d’un chauffage central est envisagée mais trop onéreuse.

À partir de 1967 des études sont effectuées pour des travaux plus importants qui porteront sur la façade de la rue de l’industrie et sur la réalisation d’un Grand Temple au rez de chaussée. Un premier courrier de demande d’autorisation est adressé à la Mairie de 3 juin 1967.

Ces travaux sont financés grâce à des dons, des prêts avec ou sans intérêts de la part des adhérents de Paix Union Mars et les Arts Réunis  et de La Libre Conscience et une aide financière du Droit Humain. Ils sont réalisés dans l’année 1975 et le 25 janvier 1976 le Grand Temple du rez de chaussée est inauguré en présence de Richard Dupuis Grand Maître de la G.L.D.F..

Les Locaux Maçonniques Nantais : Grand Temple – 33 rue Jean Jaurès – Nantes

1976/… Les temps modernes 

Les années 70 marquent un tournant pour la Franc-maçonnerie aussi bien nationale que nantaise.

La nature des travaux, les sujets traités sont moins politiques ou sociétaux et plus symboliques. Les obédiences ont renoncé à intervenir directement dans la vie politique et se consacrent à former des membres qui « iront à l’extérieur poursuivre l’œuvre commencée dans le Temple ».

Les relations avec l’Église Catholique sont nettement moins tendues. Des liens ont été créés dans la Résistance, dans les prisons ou dans les camps entre « celui qui croyait au ciel et celui qui n’y croyait pas ». 

En 1983, la congrégation pour la doctrine de la foi, tout en renouvelant l’interdiction d’appartenance à la Franc-maçonnerie supprime l’excommunication automatique.

Mais surtout le nombre de Loges aussi bien en France qu’à Nantes va connaître une augmentation qualifiée d’exponentielle.

Il y avait à Nantes deux Loges symboliques ou bleues en 1902, une troisième, Guépin en 1908 et une quatrième Sophia en 1952.

Le 16 avril 1976, la Sœur Danielle Rizon demande à utiliser une salle de réunion pour le Triangle de la Grand Loge Féminine de France et le 5 mai 1979 « la Loge Brocéliande » de la G.L.F.F sera installée en étant ainsi la cinquième.

2010 – Chantier de rénovation des Locaux 

Mais préalablement tout au long des années 2000, les membres des Cercles composant l’A.F.E.S. se questionnent afin d’examiner la faisabilité de rénover le « 33 », voire de construire de nouveaux locaux maçonniques nantais dans l’agglomération nantaise.

Les Collectivités locales sont sollicitées afin de participer au financement du bâtiment. En 2008, elles répondent positivement. Une Convention est même signée avec la ville de Nantes qui accorde 400 000 euros selon les termes ci-après :

« Les actions de l’Association prises en compte au titre de la présente convention sont les suivantes :

L’association entend réaliser des travaux de remise en état et d’aménagement dans les locaux dont elle est propriétaire depuis 1912, 33, rue Jean Jaurès à Nantes. Ces locaux sont destinés à accueillir le siège de l’Association pour ses activités et notamment la création d’un espace culturel ouvert au public et aux associations et ayant pour vocation à accueillir des expositions, conférences et débats.

Les travaux de remise en état et d’aménagement de ces locaux consistent pour l’essentiel :

  • à rénover les locaux existants,
  • à ouvrir les locaux existants sur la rue de l’Industrie,
  • à construire des espaces complémentaires sur quatre niveaux,
  • à créer un espace de conférence et d’exposition,
  • à rénover la façade inventoriée rue Jean Jaurès.

L’achèvement des travaux est prévu pour la fin de l’année. »

Il ne sera pas donné suite à la mise en œuvre de cette Convention pour les locaux maçonniques nantais.  

La Décision de Réorganisation des locaux du 33 en Assemblée Générale Extraordinaire du 21 mars 2009 

Extrait du rapport Moral du Président de l’AFES :

«…. Venons-en projet de rénovation du « 33 » qui nous intéresse plus particulièrement ce matin. Je ne referai pas l’histoire, ni vous la conterai par le menu, vous la connaissez et tout, ou presque a été dit…

Cette rénovation indispensable de nos locaux maçonniques nantais, vétustes, sales, impropres à l’accueil des Francs-maçons âgés ou handicapés, nous devons l’adosser sur la refonte de nos statuts.

C’est vrai, nous avons beaucoup espéré après l’obtention de la subvention de la mairie de Nantes, mais, des vents contraires ont soufflé et nous ont privés de toute subvention publique. Nous avons accusé le coup, mais nous nous sommes très vite ressaisis et remotivés autour d’un projet, certes moins grandiose et moins dispendieux, mais tout aussi ambitieux.

Ce projet raisonnable et raisonné nous le soumettrons à vos suffrages tout à l’heure. Il est suffisamment précis dans la description des futurs plans et sur l’aspect financier pour que vous puissiez vous déterminer en pleine connaissance. Ceci dit ce projet n’est pas figé hormis les contraintes architecturales et une commission réunissant tous les acteurs du nouveau « 33 » sera invitée à réfléchir à son aménagement et à sa décoration…..

…..En conclusion, cette rénovation, nous avons la force et la capacité cette fois de la réaliser, enfin. » Sic : Jérôme Vincent – Président.

Janvier 2010 – le Début des Travaux de rénovation 

Mais au préalable, afin de continuer à maçonner, les Loges et les Cercles doivent quitter le « 33 ». Ils se répartiront dans différents autres sites qui les accueilleront fraternellement.

Après la désignation de l’architecte, l’adoption des plans et l’entérinement du montage financier, les travaux peuvent enfin commencer. .

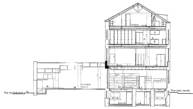
Le projet s’articule sur une refonte générale des échanges, avec la création d’un escalier neuf plus large du sous-sol aux combles et la réalisation d’un ascenseur accessible aux handicapés pour desservir les cinq niveaux. Les salles de réunion sont maintenues à leurs emplacements respectifs. La salle de repas se dédouble en une salle au niveau 2 à côté des nouvelles cuisines, et une salle dans les combles. Le bar est agrandi et communique directement avec la cour qui devient une véranda couverte. Le sous-sol est aménagé pour recevoir des sanitaires distincts pour handicapés, hommes et femmes.

Quel est le programme sur cinq niveaux :

  • Enlèvement de l’escalier en pierre remplacé par un large escalier en bois et l’installation d’un ascenseur et d’un monte-charge.
  • Sous-sol : les sanitaires et les cabinets de réflexion
  • Rez-de-chaussée : entrée rue Jean Jaurès – le hall d’accueil et l’accès au grand Temple
  • 1er étage : le petit Temple dont l’orientation sera inversée par rapport au précédent
  • 2ème étage : la cuisine et salle d’agapes
  • 3ème étage : salle de réunion et salle d’agapes.

La création de la véranda est abandonnée.

Le chantier est prévu durer un an mais là encore des aléas contraires à l’avancement des travaux retarderont l’achèvement du chantier qui s’étalera sur deux années.

Au total, ils coûteront 740 000 euros

33 jean jaures nantes

Fin des Travaux en 2012 

En réponse à la création de nouvelles Loges, sur les cinq niveaux, l’ensemble des locaux du « 33 » reconsidérés permettent l’accueil des FF\ et des SS\ dans de meilleures conditions. 

Pendant cinq années, les Frères et les Sœurs vont se réunir pour travailler au « 33 » rue Jean Jaurès.

  

La Médaille du Centenaire

        

Le Temple « Égyptien »

temple egyptien
Le Cabinet de Réflexion

Le Cabinet de Réflexion

Mais le 25 août 2017, un incendie criminel ravage nos locaux historiques du « 33 » rue Jean Jaurès. Deux feux sont partis des boîtes aux lettres. Les policiers relèvent sur place, des tags représentant des croix gammées…

Les dégâts importants détruisent le Grand Temple et brûlent des documents historiques à l’exemple de l’Encyclopédie originale de Diderot. Plus de 700 personnes se retrouvent privés d’accès aux locaux maçonniques nantais.

Depuis l’incendie de leurs locaux historiques, les Francs-maçons nantais cherchaient un toit

Les Locaux Maçonniques Nantais : CARQUEFOU le 16 octobre 2021

Après avoir utilisé divers locaux pendant quatre ans, les Frères et les Sœurs aménageaient au 2, impasse du Tertre à Carquefou. Une belle opportunité, avec des locaux plus grands qu’à Nantes comprenant trois Temples et autant de salles d’agapes et de réunions.

Pose de la première Pierre

Trois créations de Loges en soixante-quinze ans et maintenant……

En 2024, la commission Histoire et Patrimoine dénombrait quarante-et-une Loges à Nantes, trente-six créations en moins de cinquante ans. Durant cette même période, cinq sites maçonniques sont bâtis dans l’agglomération nantaise.

C’est à cette augmentation de Loges et parallèlement d’Ateliers Supérieurs que dut faire face l’A.F.E.So ces dernières années en ouvrant un nouveau chapitre de la Franc-maçonnerie nantaise.

Les locaux maçonniques nantais sont ouverts à des évènements culturels notamment pour les Journées du patrimoine et le Salon du Livre Maçonnique. Ce nouveau bâtiment est géré, comme le précédent, par l’Association Fraternelle d’Études Sociales – l’A.F.E.So.   À ce jour, 850 personnes s’y réunissent.


La commission histoire & les locaux maçonniques nantais

Ce texte est un texte de la commission histoire. Pour contacter cette commission, c’est ici :

Note de pied de page sur les locaux maçonniques nantais

  1. Pendant longtemps après 1902, les deux Loges du Grand Orient auront des actes administratifs et financiers sous l’une ou l’autre des dénominations, le plus souvent « Paix et Union ». ↩︎
  2. Comme souvent la Loge P.U.M.A.R. est désignée par Paix et Union ↩︎
  3. Pendant longtemps après 1902, les deux Loges du Grand Orient auront des actes administratifs et financiers sous l’une ou l’autre des dénominations, le plus souvent « Paix et Union ». ↩︎
  4. La tenue du 12 juin 1935 de La Libre Conscience fait état  « d’une planche de Patroma rappelant sa sortie annuelle à Fromentin le dimanche 23 juin. Le Vénérable invite instamment les FF\ à participer à cette excursion fraternelle » mais sans préciser ce qu’est cette association.  ↩︎
  5. CGTSR : scission anarchisante de la CGT qui disparaît en 1939 ↩︎
  6. Camille Pelletan -1846-1915- homme politique membre du Parti Radical ↩︎
  7. Il est dit que cette urgence aurait été dictée par Pétain parce qu’il avait été mis en cause par le G.O.D.F. dans l’affaire des fiches en 1904. Il n’a pas été retrouvé de fiches à son nom mais il est possible qu’il se soit cru concerné. ↩︎
  8. Il en est de même pour la Loge Guépin, le plus souvent désignée, surtout dans la comptabilité, par D.H. ou Droit Humain – Rappelons que le titre distinctif de cette Loge, attribué en 1925, rend hommage à l’action du médecin des pauvres Ange GUÉPIN. ↩︎